p

Servicii

Biroul are ca principal scop pregatirea documentatiei pentru proiectele clientilor nostrii dosarul cuprinzand:

Realizarea diagramelor de proces

Desenele de detaliu ale pieselor

desenele de detaliu ale pieselor – modele ale detaliilor

Desenele de ansamblu

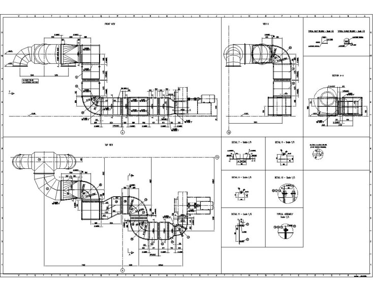
desenele de ansamblu – modele de ansamblu
i

Liste de materiale

Liste de materiale

Desene de montaj

desene  de montaj – modele de ansamblu general
La cerere, pe baza calculelor de rezistenta primare putem crea modelul 3D si executa  analiza de element finit.

Protech Design este solutia pentru dumneavoastra deoarece utilizam softuri de inalta performanta care reduc timpul alocat desenarii, care permit vizualizarea 3D a piesei inca din momentul de concept reducand astfel erorile si ducand in final la costuri mai reduse pentru clientii nostrii.

Pe baza documentiei primite de la clientii nostrii si in deplina concordanta cu nevoile acestora putem realiza cu ajutorul programelor specializate (Autocad P&ID) diagramele de proces ale instalatiilor cat si listele cu elementele componente.

O parte complementara a activitatii Protech Design o constituie si transpunerea vechilor desene din format hartie  in format electronic contribuind astfel la o pastrare in conditii optime si pe termen indelungat a informatiilor. Detaliere 2D